“種春風”私房菜餐廳· 北京空間設計
作者:
來源:貝帝設計
時間:2021-08-26
厭倦了都市的喧囂,就想找一處優雅愜意的環境,把生活的煩惱拋諸九霄云外,讓工作的壓力得以宣泄,享受著寧靜的氛圍,點上幾式精心制作的菜肴,豈不美哉?“種春風”私房菜餐廳位于北京市朝陽區大悅城7層,充滿設計氛圍的就餐環境,讓人疲憊的心靈都得到了釋放。
“種春風”私房菜餐廳· 北京

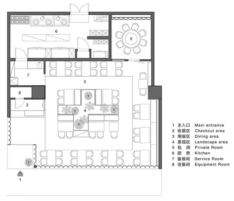
場地處于商場最南端,空間相對隱蔽,走廊周邊裝飾是傳統的徽派建筑風格,東方文化和植物世界的精華,有著不盡相同的古典美,形成和諧的入口空間。

自然光照亮下方中島景觀池,景觀池內有綠植、石頭、小石子等自然元素,中國傳統建筑“符號化”顯著。餐桌有機鑲嵌于中島營造自然光下的用餐體驗,


木質元素是樸實的本色美,碎石裝飾,讓人無形感受到空間的轉換而產生敬畏之心。

部采光井字格微微向上提升一定高度四周會形成四個傾斜面做為“屋檐”,下方四周設置坐區,營造庭院中、“屋檐”下的用餐氛圍。

空間摒棄繁瑣的裝飾,注重自然、靜寂、清雅的精神特質。展現了一種古今結合的禪意韻味。

室內燈光不算明亮,彎曲的吊燈重點聚焦餐桌,空間幽暗、神秘,沉浸式體驗很強。

熱彎玻璃外立面無需任何華麗的裝飾,有的線條柔和優美,有的線條粗獷有力,富有節奏感。



低飽和的色彩讓空間的層次豐富又耐看,方正細膩的桌椅線條構成新的體塊,增加了每個獨立小空間的私密性。


以中國傳統建筑美學,解讀當下“精致、健康、治愈”的生活與消費需求,呈現品質化場景化的精致體驗餐廳。
