1402咖啡店 · 秦皇島餐飲空間設計
阿那亞1402咖啡店,一躍成為“神盤”的網紅打卡點。也因此成為帝都及魔都“高質量人群”們的日常逃逸之所,它作為阿那亞第一家真正意義上的精品咖啡館。背后的操盤手居然是貝殼找房集團,一起來看看吧!
1402咖啡店 · 秦皇島市昌黎縣

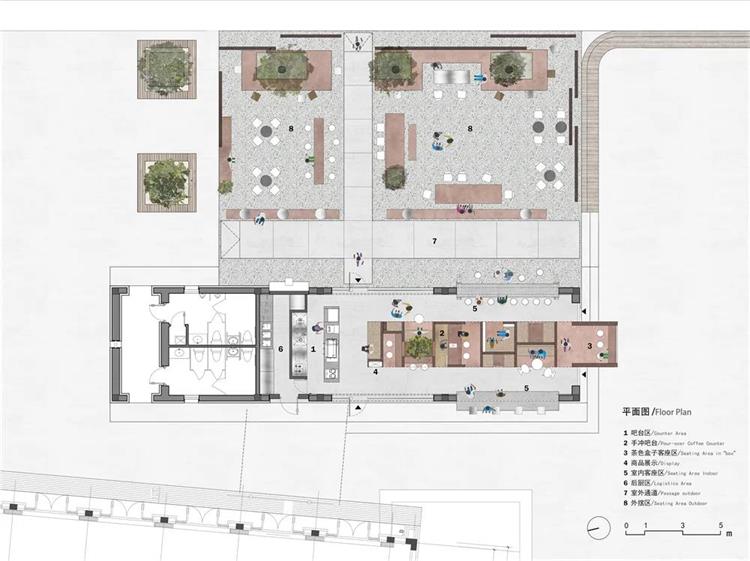
1402咖啡店項目地址位于阿那亞社區內西門通往海邊的主路一側,海邊市集旁原有的坡屋頂紅磚建筑。分為室內和外擺區兩部分。

從外面看,茶色混凝土盒子從紅磚建筑的臨街立面延伸而出,賦予了原本規則的建筑外立面新的視覺焦點,激發客人進入探尋的好奇心

咖啡館外立面以通透的大玻璃為主,不需要任何過多的點綴,只需要陽光的魔法。一天里光線角度的變化,給堅硬的水泥、棱角分明的吧臺和結構的“盒子”帶來自然的光影線條。

進入室內,空間被分成了很多個隔間,客座、等候區、手沖吧臺、景觀、產品展示等功能結合,給人新奇的體驗感。

1402所有的結構都完全用水泥打造,而海邊明亮的光線和粉色的運用讓冰冷的水泥也有了溫度,質感濃重,溫潤細膩。

室內劃分為大小不一的半私密座位和空間,干凈利落的的空間處理手法和不拘一格的設計風格,使得人們在視覺上有一種空間體驗感。




全透明的玻璃,增強了整個空間的質感和通透性。

夜幕降臨后的1402會亮起燈,光線柔和曖昧,如夜色里的燈塔。咖啡館在此刻變身成精致時髦的小酒館,供應雞尾酒和威士忌。

莫蘭迪粉色系的水泥結構將原本的空間進行了錯落有致地切割,窗邊的兩個部分可以完全打開,讓室內外連通增加互動。

外擺區部分,以十字形的大古席地材質通道平臺連通了各個方位,于光影中折射出“它空間”的想象,神秘感爆棚。


利用高低不一的矮墻,坐臺,桌子,吧桌增加了外擺區的圍合感和空間的層次。地面的水洗石材質也增添了庭院的感覺。

外擺區的固定家具材質都選擇了和室內中心盒子一樣的茶色水泥,加強了室內外的整體性和關聯性。



通過組合排列的形式,創造豐富多變的視覺效果,提高視覺層次感的同時,更為整個空間增添了一絲別致的韻律美。





阿那亞是海對于大多數來到阿那亞的人來說,都想要尋找一片心靈的凈土或者獨處時空,去遺忘都市中的煩惱,丟棄現實和虛擬中的社交網絡,回歸自我。而阿那亞的1402正是這樣一個存在,充滿了人文精神和氣質,并且咖啡飄香,接納來自城市中的“逃離者”。
