無錫寄席日料餐飲 · 江蘇空間設計
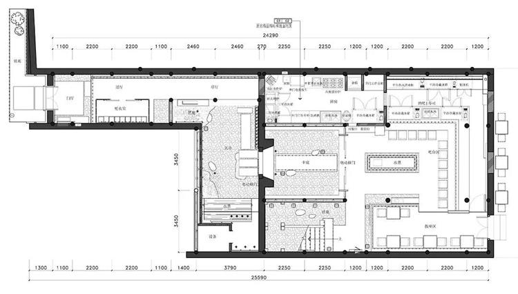
寄席位于無錫市中心的小婁巷歷史風貌區,是一家高級日料店,項目場地的空間形態豐富,因此把空間的秩序放到首位,以空間劇情的方式引人入勝,通過空間的轉乘來讓訪客體驗到層層開合,漸入佳境。
寄席日料 · 江蘇

入口以低調的尺度開篇,轉入第一重場景是一個走廊,設置場地高差讓節奏貫穿于行走體驗中,天花與墻面保留了原結構而地面與墻板構成新的呼應關系,內庭與外院分別賦予了“靜”與“動”的主題。

它在城中小巷,入口以謙遜的方式迎接訪客,景廊光線由暗到明,低處的條形燈指引向前,敘事緩緩鋪開


移門背后的石庭院以天光為線索,鋪陳簡潔映照出室內的豐富。水聲漸近,汀步限定了行走的路徑,讓景色與人物對話。


粗糙的花崗巖迎賓臺,不經意處的瓦片墻面,也與木花格有著不盡相同的古典美,形成和諧的入口空間。

融入園林手法營造空間,大理石體塊、木紋墻面將視覺隔斷,引導體驗的布局與流線。


以氛圍作為開場,紅銅的背景與板前的廚師似劇場的演繹,熱烈低回并置的結構融合人物的往來,營造出別有洞天的圖景。



大廳燈光不算明亮,重點聚焦餐桌,空間幽暗、神秘,沉浸式體驗很強。偏灰的色彩讓空間的層次豐富又耐看,為顧客帶來舒適的娛樂社交空間。

一層餐廳作為開放式的空間讓顧客有多重的視角看到食物制作的過程。


開放式廚房周圍傾斜的格柵天花板營造出街邊小吃攤般的氛圍,同時也是客人和廚師能夠密切交流的舒適空間。



整個空間以黑色為主調,配合日式園林特有的元素和燈光氛圍,反而不顯得沉悶壓抑,營造出幽靜雅致的空間感。

墻面和地面都以灰色大面積鋪蓋,簡單大方,令空間看起來顯得更加開闊且質感十足。在燈光的渲染下,讓整個就餐環境充滿禪意。


二層以“漂浮的燈籠”作為概念 將每個包間獨立開來,光影重疊構成畫面。

包房以本身結構為界限內明外暗,燈光相互映射,獨立而呼應。

包間內部摒棄繁瑣的裝飾,注重自然、靜寂、清雅的精神特質。展現了一種古今結合的禪意韻味。


整個小廂的形制,提煉自傳統日式數寄居建筑,平整的離地平臺,由走廊聯結的踏步、地臺、障子門結構,五臟俱全。

入口碎石地面;障子門的虛虛實實;傳統與現代材料的碰撞;再到燈光的聚焦處理。燈光結合暗淡的漆器體味本質的美,也因為它的“黯淡”,無不讓人感受到碗中食物的珍貴。
