SSEI日式餐廳 · 雅加達空間設計
作者:
來源:貝帝設計
時間:2021-08-25
項目坐落于雅加達中央商務區,白天是一家日式休閑餐廳,晚上則是清酒酒吧。空間雖然不大,但是其空間的設計手法,讓整個空間顯得別有洞天的感覺。在處理手法上是用了很大的心思的,一起來看看吧!
SSEI日式餐廳 · 雅加達

吧餐廳的外立面上設有垂直的木制格柵,以減弱西曬帶來的刺眼陽光。這些木制格柵除了具有遮陽的實用功能外,還出于對立面美學效果的考慮。

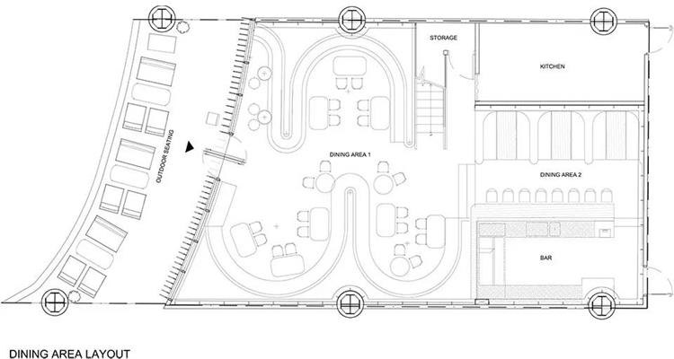
設計靈感來源于有機的自然景觀,這種靈感轉化為自由流動的曲率,并應用到座椅與吊頂裝飾的設計中。



餐廳空間上方裝飾著一系列大型懸掛屏風,成為整個餐廳引人注目的焦點。這些半透明的屏風與下方的座位布局相互呼應,營造出統一和諧的視覺體驗。

自由流動的懸掛屏風成為整個餐廳引人注目的焦點,風與下方的座位布局相互呼應。

深色主色調與溫暖的燈光相結合,豐富了空間的層次,給空間有一種強烈的神秘感。

當地的天然材料,如深色木材、天然石材以及礫石交織在一起,模擬出戶外環境,帶給人們宛如置身于大自然之中的感官體驗。

主要用餐區的后部設有一個尺度更小,更為私密的用餐空間,從這里可以直接進入主題酒吧。

餐廳中還增設了夾層,夾層上設有包間,可以作為小型私人會議空間使用。

間內采用了與用餐區不同的淺色木制飾面,營造出更為明亮、溫暖、舒適的氛圍,與公共用餐區形成鮮明的對比。

整個空間的肌理讓人心緒寧靜,這對于熱帶地區的商業是非常有吸引力的。且有一種強烈的秩序美。

餐廳環境的布置帶給人以優雅、現代感。以具有人情溫度的食物與服務,及充滿設計氛圍的就餐環境,傳遞別致的生活體驗。
