易間”咖啡簡餐店 · 北京餐飲空間設計
“易間”為中國網易旗下的咖啡品牌,位于網易北京總部大樓。這里不僅僅是一處有氛圍的咖啡館,這里更是一個多功能空間,提供人們交流與互動,可滿足小型演出,沙龍,展覽,辦公,會議等需求。一起來看看吧!
“易間”咖啡簡餐店 · 北京

門頭以灰黑色為色彩基調,簡單自然的顏色在視覺上突顯區域的分布和空間的流動感,陽光透過大大的落地窗,顯得十分有格調。

整體空間看似簡單純粹甚至了無新意,實際上設計將簡單的3個盒子讓空間產生了虛實的結構關系。

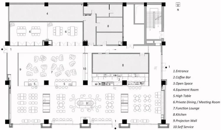
透過盒子不同的開口方向產生不同的正和負空間。滿足了各種不同的功能,比如吧臺區、多功能區,卡座區等。

除了原木材質,咖啡廳內部也充分利用了玻璃。 整個立面,包括門,都是由該材料制成的,這意味著從街道上完全可以看到空間。

空間中有兩個門是可以通往其他空間的重要通道,規劃平面需留出主要通道。平面被通道分割為大大小小的矩形區域,按照功能分區。

四面開闊的玻璃窗將自然光引入室內,水泥地面搭配灰白色吸音墻,讓整個空間營造出格外放松、質樸的氛圍。

多功能區與長吧臺與廚房結合為整個空間的主體,剩下的空間為座位區,布局較為對稱。

分別為一人位,兩人位,三人位,四人位,VIP。2個小木盒子卡座將散座區分為3個區域,中心為休閑沙發區。

空間以白色與木色為主,自然簡潔,材質上采用橡木地板與白色木色板為主要材質,墻面上大面積使用的白色木絲板材質有效降低與其他區域的相互干擾,實現完美的聲學效果。

開放式的咖啡制作空間,讓客人與咖啡師有了更多面對面交流的機會,也拉近了客人之間的距離

設計中不刻意追求材料的豪華和變化,而應著重幾種特定材質的相互穿插運用,以形成空間的有機和豐富。


樓。


淡雅的燈光,形式各異的座椅,讓顧客體驗咖啡文化新理念,也從視覺上給人一種非常安穩和舒暢的感覺。

為了容納多種功能與復雜情緒,給顧客全新的空間體驗,易間在空間設計上,不但注重藝術性與實用功能的平衡,也強調質感與靈動變易。

咖啡、游戲娛樂、健康、品質、年輕等多元元素充盈著每個角落,店內整體布局錯落有致,這里不僅是一家咖啡吧,更是一個讓靈魂得到舒適和安寧的場所。

略有一點藍管子的風格