SOMESOME酒吧餐廳 · 北京空間設計
作者:
來源:貝帝設計
時間:2021-08-20
SOMESOME餐吧對美食體驗有著大膽的理解,它可以是既現代又經典的,也可以是既時髦又有藝術感的。餐廳設計在一定程度上,顛覆了對空間的想象和認知,用交錯層疊的原始狂野手法,打造一個震撼視聽的洞穴空間。一起來看看吧!
SOMESOME酒吧餐廳 · 北京

在SOMESOME餐廳中,視線只能通過“挖鑿”出的“山洞”瞥見一隅,神秘感爆棚。

每個十字拱由地面向上生長,延伸至頂面交錯至另一側落下,創造出半私密的“繭”式空間環境。

利用拱的框架來取景,創造空間的幾何對稱,通過藝術與結構的完美結合,再現了文藝復興的個性與浪漫。

大廳就餐區連續的十字拱帶來的秩序感,提升了空間的靜謐氛圍,不僅有顏值,還有品質。

干凈利落的的空間處理手法和不拘一格的設計風格使得吧臺視覺上有一種空間體驗感。

在燈具的選擇上,用圓點的燈光進行滿版的布局,點綴于空間屋頂的上方,以此來強化“山洞”的概念。

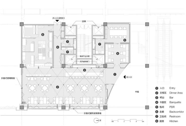
與大廳就餐區連續的十字拱帶來的秩序感相比,在“挖鑿”出的“山洞”間穿行則是一層一層逐步解開好奇心的體驗——鉆進深深的入口門廊,穿過另一道“山洞”進入卡座區,再穿過一道門才能進入包廂。



通過組合排列的形式,創造豐富多變的視覺效果,提高視覺層次感的同時,更為整個空間增添了一絲別致的韻律美。


現代中性色調下概念餐廳兼具現代感,連續面的線性美,極富韻律感。





卡座區對稱布置的兩面鏡子制造出戲劇性的視覺幻象,層層遞進的空間體驗在這里無限延展。

采用陣列的手法來進行布置,增強了空間的節奏感。雙人座與四人座的排位既滿足了顧客人數不同情況下的多變性。

通過石與木,質樸與自然的配搭,打造出隨性的自在與藝術觀感下的人文空間,彎曲的平面和立面線條也形成了一系列獨特的微空間,讓客人們可以坐在其中盡情享受佳肴。
